現場住所:千葉市緑区あすみが丘9-24-1




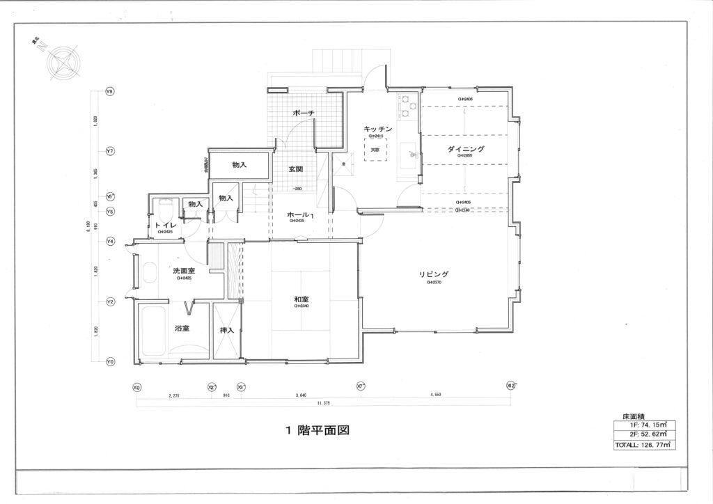
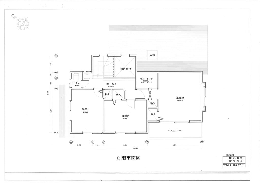
現況図(Before)
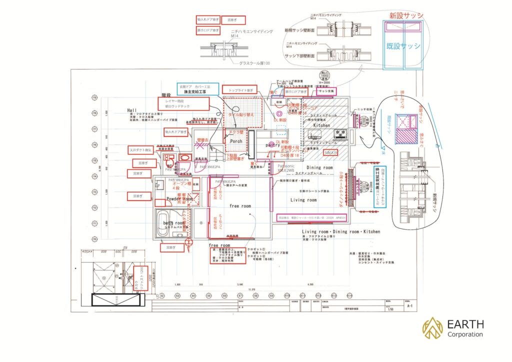
平面プラン (After)
仕様書
住宅設備
アイランドキッチン(Takara)
カップボード(Takara)
バスルーム(Takara)
洗面化粧台(Takara)(メイン)
洗面台(Takara)(トイレ手洗い)
玄関ポーチ・玄関・ホール

玄関ポーチ床
平田タイル SCH-3060M
玄関床
平田タイル SCH-3060M-OD
シューズBOX
Panasonic XXQCE216HN□/XXQCE316HNR(L)K□

ホール・ローカ・階段
- 床:※支給工事 東リ ピエスタLCT55-600
- 上り框:※支給工事 サンゲツ玄関框
- 壁・天井:※支給工事 サンゲツSP
- 建具(階段下物入×2):PA型 XMJE2PA
- 階段(段板・蹴込)重ね貼り:朝日ウッドテックレイヤー階段

Living Room

内装仕上げ
- 床 :※支給工事 東リ ピエスタLCT55-600
- 壁・天井:※支給工事 サンゲツSP
- 建具(ローカ/LR):Panasonic XMJE2WB
窓サッシ
- LR南 :【新窓既存撤去】電動シャッター付引き違い窓 23320 APW331 YKKAP
- LR東:※支給工事 【新窓カバー工法】FIX窓 11913 APW430 防犯 YKKAP
DK

内装仕上げ
- 床 :※支給工事 床:東リ ピエスタLCT55-600
- 壁・天井:※支給工事 サンゲツSP
窓サッシ
- 北 :【勝手口塞ぎ】電動シャッター付引き違い窓 23320 APW331 YKKAP

- 北:【キッチン背面形状変更】縦滑り出し YKKAP

- 東出窓:【状変更】縦滑り出し YKKAP


Free Room

床下地
- 畳撤去嵩上げ:桟木+スタイロフォーム@25+合板@12
内装仕上げ
- 床 :※支給工事 東リ ピエスタLCT55-600
- 壁・天井:※支給工事 サンゲツSP
収納周り
- 建具 :【造作建具】ハンガースライド 面材:ポリ合板(一般標準品)
- 収納:中段付き 壁・天井:サンゲツSP
窓サッシ
- 南 :※支給工事 【内窓新設】YKKAPプラマードU/Low-E複層ガラス(ガス入り)2421
間仕切り壁設置
- 東 :【FreeR/LR開口塞ぎ】204下地・リビングと現和室の間を内壁で仕切る。壁掛けテレビ用下地、マルチメディアコンセント
IF洗面・トイレ

トイレ
便器
- 便器:※支給工事 TOTO ピュアレストQR【CS232B+SH232BA/NW1】 便座:※支給工事 【CS232B+SH232BA/NW1】 リモコン:【TCA320】
内装仕上げ
- 床 :※支給工事 東リ フロアタイル PWT3277
- 壁・天井:※支給工事 サンゲツSP
その他
- 建具 :パナソニック ベリティス PA型 XMJE2PA GY
- 換気扇:パナソニック【FY-17C8】新設
- 壁ニッチ:塞ぐ
- 既設窓サッシ:塞ぐ
トイレ手洗い用化粧台設置
- 物入れ撤去 洗面化粧台設置:takaraメーカー見積もり 図面
洗面所

- 造作トールキャビネット+洗面化粧台設置:takaraメーカー見積もり 図面
- 建具 :パナソニック ベリティス PA型 XMJE2PA GY
- ダクト工事:洗濯乾燥機ダクト
2Fローカ・階段・吹き抜け

吹き抜け
- 床造作: 根太210 +構造用合板12㎜+フロアタイルPWT3212 便
内装仕上げ
- 床 :※支給工事 東リ フロアタイル PWT3277
- 壁・天井:※支給工事 サンゲツSP
その他
- 階段リフォーム :朝日ウッドテックレイヤー階段
- 換気扇:パナソニック【FY-17C8】新設
- 壁ニッチ:塞ぐ
- 既設窓 ※支給工事(FIX)サッシ:カバー工法 縦滑り出し窓に改装
- 内窓新設:※支給工事 階段Fix窓に内窓設置
照明工事
- DLその他新設
2F洋室(西)

内装仕上げ
- 床 :※支給工事 東リ フロアタイル PWT3277
- 壁・天井:※支給工事 サンゲツSP
- 窓枠:4方木枠
- 建具(出入口ドア): PA型 XMJE2PA
- 建具(クローゼット): PA型 UW735
その他
- 壁掛けTV下地 :コンパネ下地
- 配線工事:TV必要配線
2F洋室(中)

内装仕上げ
- 床 :※支給工事 東リ フロアタイル PWT3277
- 壁・天井:※支給工事 サンゲツSP
- 窓枠:4方木枠
- 建具(出入口ドア): PA型 XMJE2PA
- 建具(クローゼット): PA型 UW735
その他
- 壁掛けTV下地 :コンパネ下地
- 配線工事:TV必要配線
2F主寝室

内装仕上げ
- 床 :※支給工事 東リ フロアタイル PWT3277
- 壁・天井:※支給工事 サンゲツSP
- 窓枠:4方木枠
- 建具(出入口ドア): PA型 XMJE2PA
- 建具(クローゼットドア): PA型 XMJE2PA
その他
- 壁掛けTV下地 :コンパネ下地
- 配線工事:TV必要配線・コンセント増設 DL新設
- 収納改装
2Fトイレ

内装仕上げ
- 床 :※支給工事 東リ フロアタイル PWT3277
- 壁・天井:※支給工事 サンゲツSP
- 窓枠:4方木枠
- 建具(出入口ドア): PA型 XMJE2PA
便器類
- 便器: ※支給工事 TOTO ピュアレストQR【CS232B+SH232BA/NW1】 便座:※支給工事 【CS232B+SH232BA/NW1】 リモコン:【TCA320】
- 換気扇:パナソニック【FY-17C8】新設
- 壁ニッチ:塞ぐ
- 既設窓サッシ:塞ぐ
手洗い化粧台
- トイレ手洗い用化粧台交換:takaraメーカー見積もり 図面




